Alajuelita contará con Parque de Desarrollo Humano para fomento recreación, deporte y cultura
Fondos para construir una cancha multiusos y un skate park ya están confirmados
El nuevo parque de Desarrollo Humano de Alajuelita fomentará la recreación, el deporte y la cultura en esa comunidad.
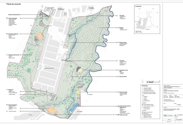
El Parque tiene la misión de estimular una serie de capacidades en la población de ese cantón, a partir de la recreación, la cultura, el deporte y la tecnología.
Para ello albergará aulas de danza, teatro, música, auditorio, gimnasio, aulas convencionales, oficinas, piscina, canchas y senderos.
La primera etapa del proyecto que comprendía la compra del terreno de 24 hectáreas, concluyó en 2017.
De acuerdo con los encargados, la inversión a la fecha ha sido de ¢1.147.398.886 para la compra del terreno y obtenidos de los fondos de FODESAF, y otros ¢11.300 millones para la elaboración de un estudio de suelo, realizado por el TEC.
El terreno se ubica en San Felipe, uno de los distritos más densamente poblados del cantón de Alajuelita y con cercanía a Tejarcillos y el Jazmín, localidades de gran vulnerabilidad social y con centros educativos cercanos, cuya matrícula es una de la más alta del distrito.
“Al ser un proyecto de las dimensiones y la complejidad que implica la compra de un terreno tan grande, pero también del desarrollo de iniciativas, de espacios de recreación, deporte, formación, convivencia, desarrollo del talento de las personas que viven en Alajuelita, ha implicado una coordinación y articulación institucional muy fuerte, pero precisamente esa es la base fundamental del programa Tejiendo Desarrollo”, afirmó Mercedes Peñas Domingo, Primera Dama de la República.
El Presidente de la República, Luis Guillermo Solís Rivera, realizó este lunes 22 de enero una inspección del terreno junto a la primera dama y la ministra de Cultura y Juventud, Sylvie Durán Salvatierra. El proyecto sigue su ruta de avance y a la fecha están confirmados varios fondos para la construcción de infraestructura:
-¢1.000 millones de colones aportados por el Fondo de Desarrollo Social y Asignaciones Familiares (FODESAF) para la construcción de un Centro de Formación y Capacitación.
-¢65 millones de colones aportados por un convenio tripartito entre el Patronato Nacional de la Infancia, Municipalidad de Alajuelita y Ministerio de Cultura y Juventud para el financiamiento del Parque Socioeducativo a instalarse frente a las instalaciones de la Escuela de Tejarcillos.
-¢100 millones de colones aportados por un convenio tripartito entre Instituto sobre Alcoholismo y Farmacodependencia, Instituto Costarricense de Electricidad (ICE) y Ministerio de Cultura y Juventud (MCJ) para la construcción de la cancha multiusos.
-¢200 millones de colones aportados por un convenio tripartito entre Instituto Costarricense sobre Drogas, ICE y MCJ, para la construcción de un skate park.
"Cuando iniciamos este proyecto, en 2014, nos encontramos un informe del Programa de las Naciones Unidas para el Desarrollo (PNUD) relacionado con el espacio público y las áreas recreativas, que plantea que las comunidades necesitan 9 m2 por habitante de área pública recreativa.
En Alajuelita existe un déficit muy importante, la cantidad de áreas verdes por habitante es de apenas 0,39 m2, lo que justificó este proyecto, para avanzar hacia una política pública de inclusión social y convivencia ciudadana”, indicó Sylvie Durán, ministra de Cultura y Juventud
Otro de los objetivos del proyecto es involucrar a la comunidad en el proceso de formulación de propuestas para el parque e incentivarlos a apropiarse del espacio, por lo que ya se realizó un taller con niños de la Escuela de Tejarcillos sobre el cuido del espacio público y un taller de huerta urbana y compostaje en el terreno con vecinos de la comunidad.
Además, sostienen encuentros periódicos con asociaciones de desarrollo vecinas del proyecto: Jazmín, Tejarcillos, Palo Campana, Juan Rafael Mora Porras, Geranios, Los Pinos y García Monge.
Este proyecto fue priorizado por el programa Tejiendo Desarrollo luego de que la comunidad y el Consejo Cantonal de Coordinación Interinstitucional lo aprobaran.
La iniciativa es coordinada por el Ministerio de Cultura y Juventud y está respaldado por el trabajo articulado del Gobierno Local, el Instituto Tecnológico de Costa Rica (TEC), el Despacho de la Primera Dama, Instituto Mixto de Ayuda Social (IMAS), Instituto de Desarrollo Rural (Inder), Dirección Nacional de Desarrollo Comunal (Dinadeco), Ministerio de Planificación y Política Económica, el Ministerio de Trabajo y Seguridad Social, a través del Fondo de Asignaciones Familiares, el Viceministerio de Gobernación y el Viceministerio de Paz, entre otros.






